セカンドライフの平屋 - 【公式】Rico Life │ コスパで創る、豊かな暮らし。
イベント

OPEN HOUSE

【期間限定】見学会 in 白岡市

セカンドライフの平屋

セカンドライフの平屋

夫婦ふたりの暮らしにちょうどいい、 24坪・1LDKのコンパクトで快適な平屋の住まい。

会場
白岡市 ※詳細はご予約いただいた際にお伝えいたします
開催期間
2026/03/08(日)〜2026/05/10(日)
10:00〜17:00 定休日:水曜日

1F

1F 間取り

POINT

この住まいの見どころ

POINT 01

ゆったり暮らせる 約20帖のLDK

ゆったり暮らせる 約20帖のLDK

約19.7帖の広々としたLDK。
リビング・ダイニング・キッチンが一体となった空間で、家族が自然と集まり、ゆったりとした時間を過ごせます。大きな窓から光が入り、明るく開放的な空間が広がる住まいです。

POINT 02

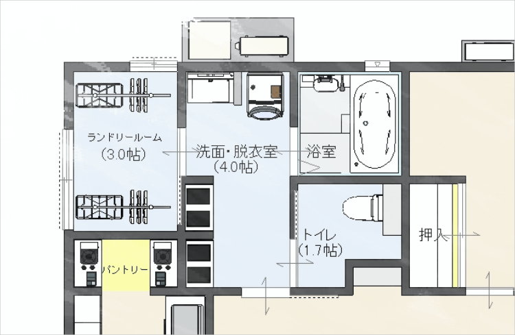
家事がラクになる回遊動線

家事がラクになる回遊動線

キッチンからパントリー → 洗面室 → 浴室へとつながる動線で、料理・洗濯・収納を効率よく行える設計。移動の無駄を減らすことで、日々の家事を スムーズにこなせる間取りになっています。

POINT 03

収納充実でスッキリ暮らせる平屋

収納充実でスッキリ暮らせる平屋

洗面室には可動棚の収納を設け、タオルや日用品をすっきり収納できる設計。さらにキッチン横にはパントリーも備え、食品や日用品のストックもまとめて収納できます。住まい全体に収納を確保することで、片付けやすく、すっきりとした暮らしを実現します。

Rico Life 営業部の佐藤と申します。今回ご見学いただける住まいは、これからの暮らしを見据えたコンパクトな平屋です。約20帖のLDKを中心に、家事動線や収納計画など、日々の暮らしやすさを大切に設計しました。コンパクトでも窮屈さを感じない空間の広がりや、暮らしやすさを考えた間取りは、図面だけでは分かりにくい部分も多くあります。実際のサイズ感や動線を、ぜひ現地でご体感ください。

間取りや土地探しのご相談

間取りや土地探しなど、家づくりに関するご相談も承ります。

事前予約で待ち時間なし

事前にご予約いただくことで、待ち時間なくご案内が可能です。

キッズスペース完備

お子さまが遊べるスペースもご用意しています。

完全予約制で落ち着いた見学

事前予約制のため、落ち着いて住まいをご見学いただけます。

未来の豊かな生活を
創ります。

CONTACT 来場予約

間取り作成から
お見積りまでご相談!

無理なご提案は一切いたしません。ご家族のペースに合わせて、じっくりお話をお聞かせください。一緒にベストな選択を見つけましょう!

スタッフ
間取り・資金相談 来場予約はこちら

お打合せは埼玉県久喜市にある店舗にて行わせていただきます。キッズスペースや駐車場を完備しています。

AREA 施工可能エリア

埼玉県

  • 上尾市
  • 伊奈町
  • 桶川市
  • 春日部市
  • 加須市
  • 川口市(一部不可)※
  • 川島町
  • 北本市
  • 行田市
  • 久喜市
  • 越谷市
  • 鴻巣市
  • 幸手市
  • 白岡市
  • 杉戸町
  • 草加市(一部不可)※
  • 蓮田市
  • 羽生市
  • 松伏町※
  • 三郷市(一部不可)※
  • 東松山市(一部不可)※
  • 宮代町
  • 吉見町
  • 吉川市※
  • さいたま市
    • 岩槻区・ 浦和区※
    • 大宮区 ・ 北区
    • 桜区※ ・ 中央区※
    • 西区 ・ 緑区※
    • 見沼区

千葉県

  • 野田市(一部不可)

茨城県

  • 古河市
  • 五霞町
  • 境町
  • 坂東市(一部不可)※

栃木県

  • 野木町
  • 小山市(一部不可)※

群馬県

  • 板倉町※
  • 明和町※
  • 館林市(一部不可)※

【備考】 ※:遠方割増あり(一部不可):同一市内でも一部対象外となります

TOP